DISTINCT
Discover a rare opportunity to own a stunning family home in the highly sought-after locale of Coconuts, just minutes from the Innisfail CBD. Boasting over 18 metres of absolute beach frontage, this property places you among the exclusive 0.01% of Australians with direct beach access.
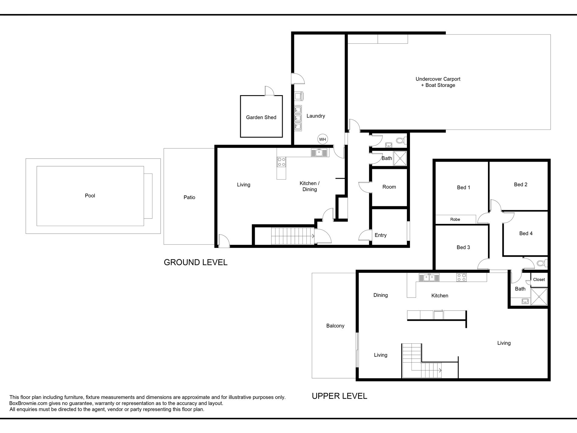
Set over two levels, the home features a light-filled floorplan, perfect for family living and entertaining. A self-contained apartment downstairs offers convenience for extended family, guests, or potential rental income.
With scope to put your own mark on the property through renovations, you can tailor this home to suit your family’s lifestyle while enhancing its value.
Perfectly positioned, it combines the tranquility of beachfront living with the convenience of being just minutes from shops, schools, and amenities.
This is a rare chance to create your dream home in a family-friendly coastal paradise.
THE FACTS
- Set on a spacious allotment of 969m² with over 18m of beachfront
- Positioned in front of a well-maintained council esplanade and the sandy shoreline of Coconuts
- Well-designed, family-friendly floorplan set over 2 levels with internal stairs
- Lush tropical garden with a swimming pool
- Upstairs offers open-plan living and dining leading to an entertainer’s balcony with ocean views
- Four light-filled and bright bedrooms, plus an additional room downstairs
- Additional family room
- Downstairs features a fully self-contained retreat
- Large kitchen with abundant storage
- Main bathroom includes a walk-in shower and separate toilet
- Internal laundry and workshop
- Undercover parking for up to 4 vehicles
- Additional features include hardwood timber floors, solar power system, air-conditioned spaces, and plenty of storage
- Built: 1992
- Council rates: Approx $4392 per year
These photographs have been enhanced for marketing purposes and may not reflect the actual appearance or dimensions of the property. They are intended to provide a visual representation of the property’s potential and should not be relied upon as a basis for making decisions about purchasing/renting. Prospective buyers/renter should conduct their own due diligence, including inspection and verification of property features and conditions. Champions In Real Estate are not responsible for any errors, inaccuracies, or misrepresentations in the photographs.
Champions in Real Estate is a licensed real estate agency. We are not licensed builders, inspectors or valuers and the information contained here has been provided to us by third parties. The information is for guidance only. Whilst we make efforts to ensure all information contained herein is gathered from sources we believe to be reliable, we provide no guarantees concerning the accuracy, completeness, or current nature of the information and disclaim all liability in respect of any errors, inaccuracies or misstatements contained herein. It is not intended as building, pest, planning or other advice and should not be construed or relied on as such. Prospective purchasers must undertake their own due diligence, enquiries and undertake various searches to verify the information contained herein. The information has been prepared without taking into account your personal objectives or needs for the property. Before making any commitment of a legal or financial nature you should consider the appropriateness of the information having regard to your circumstances and needs and seek advice from appropriate advisors.
Features
- Air Conditioning
- Outdoor Entertainment Area
- Swimming Pool - In Ground
- Broadband Internet Available
- Floorboards
- Solar Panels



































